公司名称:苏州古月水湾环保科技有限公司
公司地址:苏州市吴中区胥口镇繁丰路899号4幢
联系方式:180-2160-0747
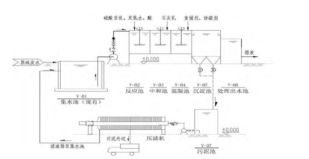
芬顿废水处理
芬顿法的实质是二价铁离子(Fe2+)、和双氧水之间的链反应催化生成羟基自由基,具有较强的氧化能力,其氧化电位仅次于氟,高达2.80V。另外, 羟基自由基具有很高的电负性或亲电性,其电子亲和能高达 569.3kJ 具有很强的加成反应特性,因而 Fenton试剂可无选择氧化水中的大多数有机物,特别适用于生物难降解或一般化学氧化难以奏效的有机废水的氧化处理。
芬顿氧化法是在酸性条件下,H2O2在Fe2+存在下生成强氧化能力的羟基自由基(·OH,并引发更多的其他活性氧,以实现对有机物的降解,其氧化过程为链式反应。其中以·OH产生为链的开始,而其他活性氧和反应中间体构成了链的节点,各活性氧被消耗,反应链终止。其反应机理较为复杂,这些活性氧仅供有机分子并使其矿化为CO2和H2O等无机物。从而使Fenton氧化法成为重要的高级氧化技术之一。



